concept about us project process nikki contact

 

N house

 

(2012)

 

「なか間の家」

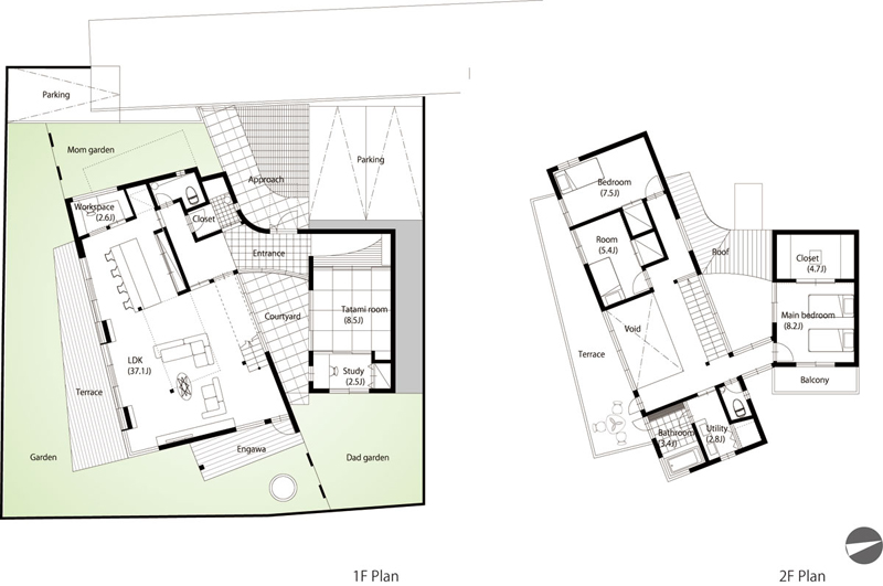
住居と個人オフィスの用途を持つ住宅です。
異なる2つの用途を分けることで、「2つのヴォリュームの隙間に生まれる空間=なか間」を中心に、各室を計画しました。
「なか間」とそれに寄り添う吹抜けは、室内に光や風を取り込むとともに、空間を連続させ、建物全体に一体感を与えます。そして、「なか間」のまわりに居室を配置することで、玄関やリビング・個人オフィス(和室)や寝室から視線は通り抜け、どこにいても「なか間」を通し、人の気配を感じることができます。
また、敷地の南面は崖地であるため、眺望や日当りを考慮し住居部分のヴォリュームを真南面に向ける一方、2階のヴォリュームを若干振ることで、寝室に朝日を取り入れることに配慮しています。

 

所在地:千葉県千葉市
構造・階数:木造、2階建
建築面積:124.52m2
延床面積:187.52m2

 

"House NAKAMA"

 

It is a house with the purpose of residence and private office.

Situated in the cities near Tokyo.

The client requested a divided spaces of living space and private office space. The two volumes created the void space ( NAKAMA ).

 

 

Location: Chiba ,Japan
Structure: Wooden , 3F
Building area: 124.52sqm
Total floor space: 187.52sqm

N houseN houseN house

N houseN houseN house